CONOIE三軒茶屋 公寓

涩谷直达家庭型联排别墅

神奈川县 · 横滨市-西区

项目特色 / HIGHLIGHTS

  • 人气City Walk街区「三轩茶屋」步行圈内。 地铁快车1站路5分钟直达涩谷,流行文化前沿。 出门就是大学附属幼儿园,育儿家庭必选。 商店街、超市、中小学近在咫尺,生活便利。

数据速览 / KEY FIGURES

  • 落成于

    2025

  • 土地面积

    243.76

  • 地上/地下

    3 / 0

  • 共有

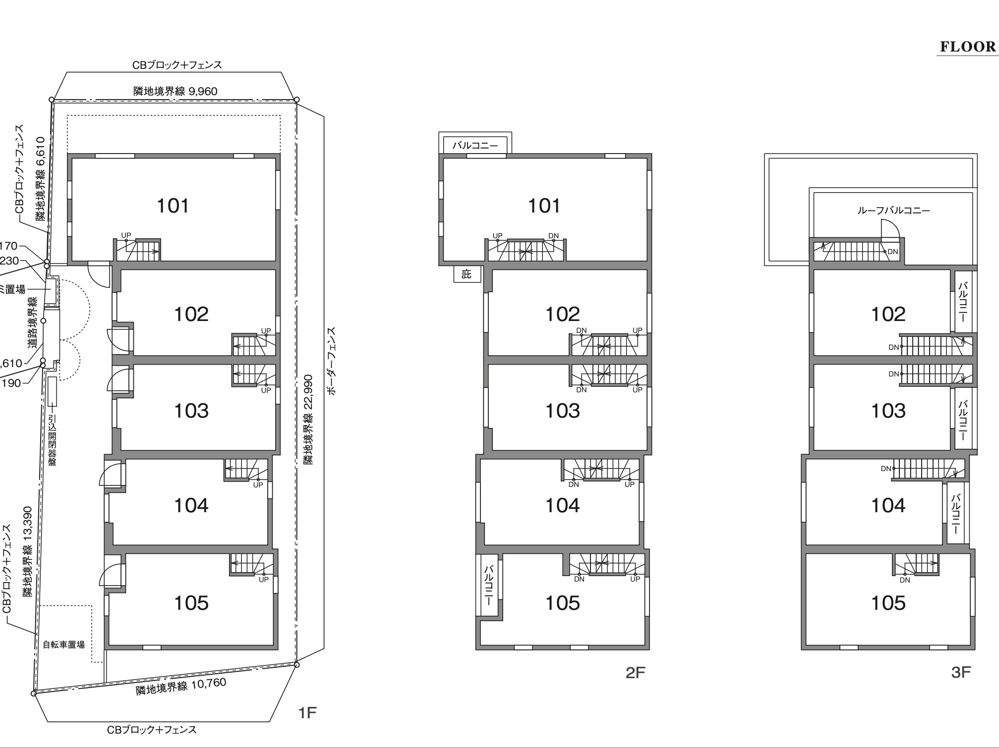
    5

  • 最近翻新于

    2025

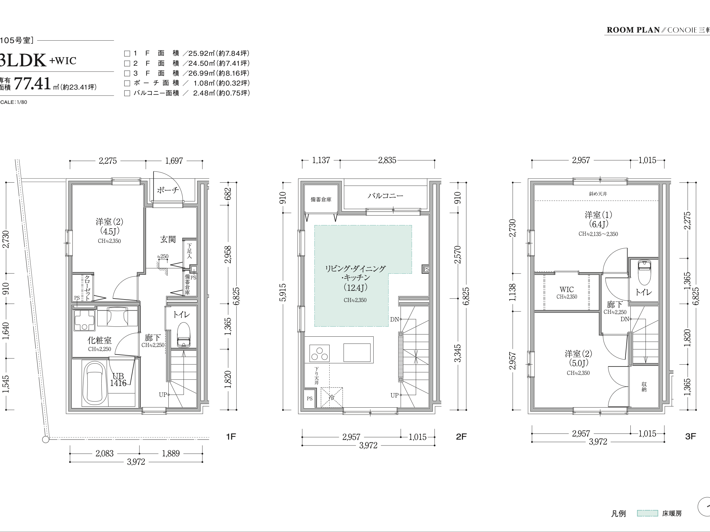
  • 建筑面积

    372.77

  • 建筑结构

    轻钢构造

  • 主要户型

    3室户

价格 / PRICING

4亿4000万円 约人民币308万

参考租赁回报率 4.5 %

位置 / LOCATION

野沢1丁目16番

交通信息

小区位置图
小区位地图
交通线路图
交通图

周边设施

购物与餐饮

  • 罗森-三茶1丁目店:徒步5分
  • 丸悦-中里店:徒步7分
  • MyBasket-野泽2丁目店:徒步7分
  • SEIMS-三茶1丁目店:徒步9分
  • 肉屋花正-三轩茶屋店:徒步12分
  • 中里通商店街:徒步5分
  • 荣通-日大通商店街:徒步10分
  • 三轩茶屋胡萝卜塔:徒步13分
  • 西友三轩茶屋店:徒步15分

休闲与设施

  • 地铁-三轩茶屋站(东急田园都市线):徒步12分
  • 公交-中里站:徒步7分
  • 上马公园:徒步2分
  • 儿童广场公园:徒步15分
  • 世田谷公园:徒步21分
  • 石桥医院:徒步4分
  • 三轩茶屋医院:徒步7分

行政区介绍 / AREA INFO

横滨市-西区区域图

关键信息 / FEATURES

  • 土地权利

    所有权

  • 用途地域

    一低层

  • 建筑密度

    70%

  • 容积率

    150%

其他

  • 高度地区
  • 准防火地域
  • nspecial用途地区
  • 防火地域
  • 特定用途制限
  • 传统建造物群

推荐理由 Recommends

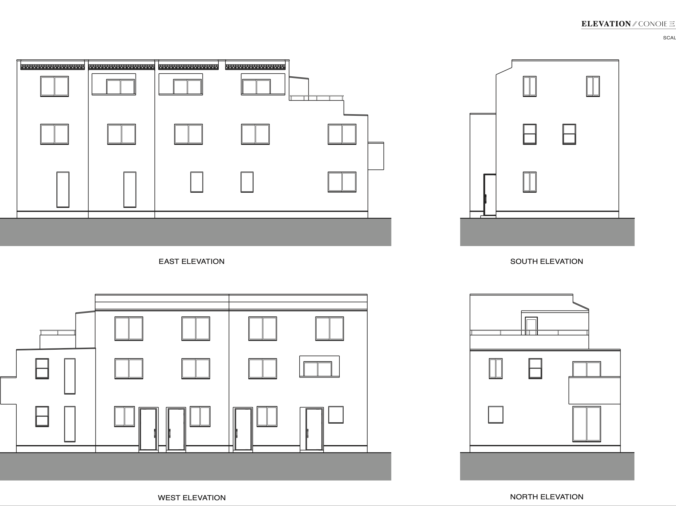
三轩茶屋是东京西南方向的一等大站,5分钟到涩谷且中间一站不停,而直通半藏门线还可以不换车到大手町。同时,世田谷区以公园密布、学校林立等优渥的育儿环境,吸引了育儿家庭的纷纷落户。 CONOIE三轩茶屋,是一栋由5套住户并肩在一起形成的联排,但不同于传统的联排设计,三种不同的外立面,又让建筑的表情显得生动。 在近年来地价增长表现优异的”三茶“板块,耐火建筑设计让建筑密度可以增加10pt,赋加了资产价值近16%。 在世田谷区最有价值的板块,一套稀缺的新筑联排别墅,值得珍藏。